Na glavni sadržaj

Upit za ponudu

Paletni regal

Ispunite navedena polja što je više moguće i zatim kliknite na "Pošalji zahtjev". Dodatne podatke za prošireni upit ili pojedinačnu ponudu možete unijeti na kraju obrasca pod "Dodatne informacije". Puno hvala!

Opće informacije:
Što želite pohraniti?
Tip regala:
Instalacija/uporaba:
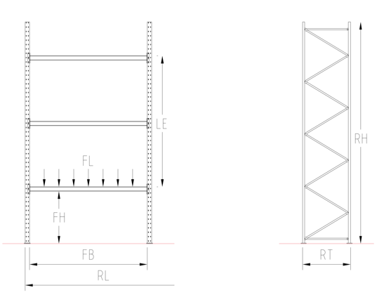
Dimenzije regala:
(Neobavezno, pogledajte legendu za objašnjenje jedinica).
Nosivost:
(Obratite pažnju na legendu za objašnjenje jedinica dole)
Za vanjsku ugradnju s krovom:
Boja regala:
Montaža:
Iskoristite prednosti stručne montaže naših iskusnih OHRA montažnih timova.
Dodatne informacije:
Absenden